





















.jpeg)
.jpeg)


.jpeg)
.jpeg)












Дом Капорки
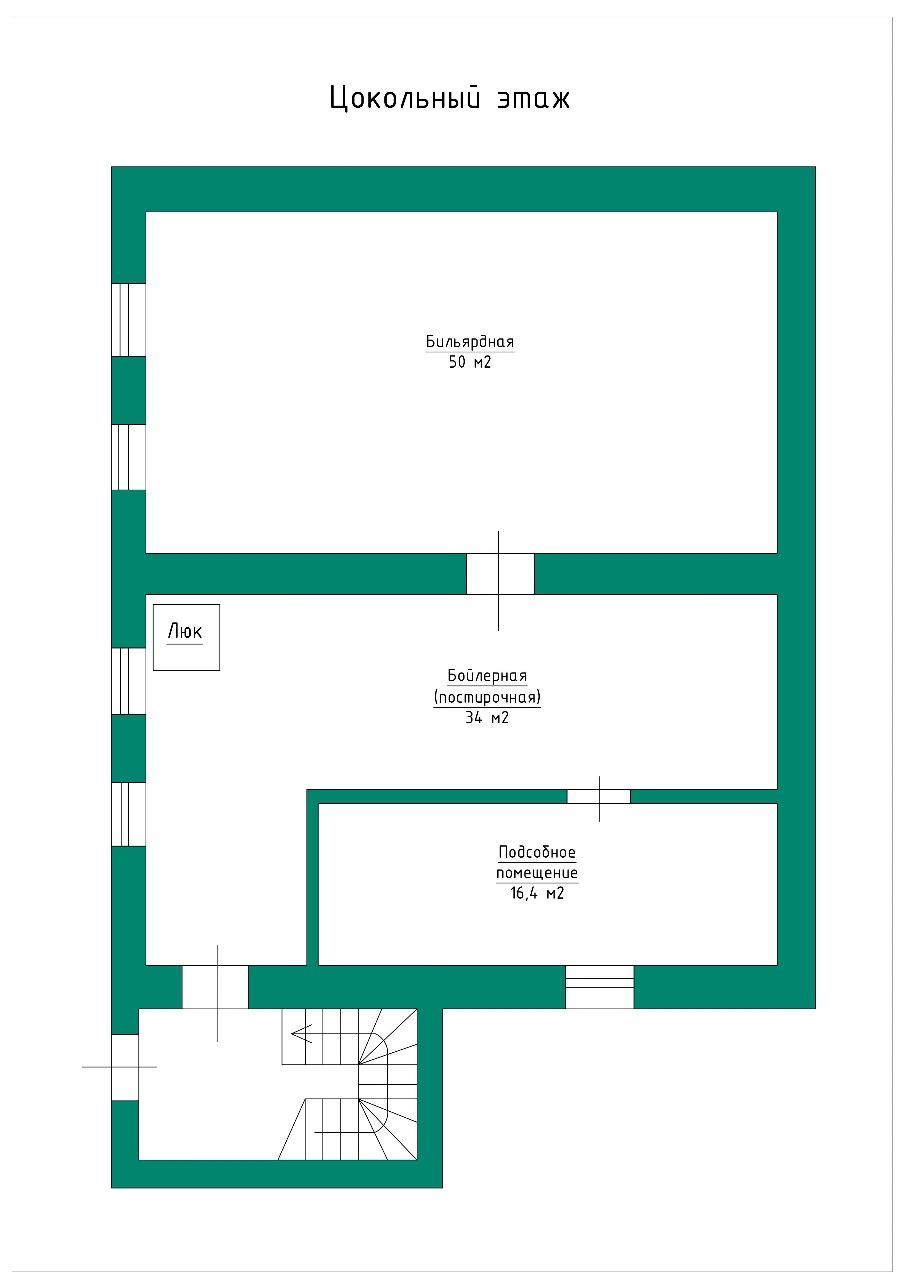
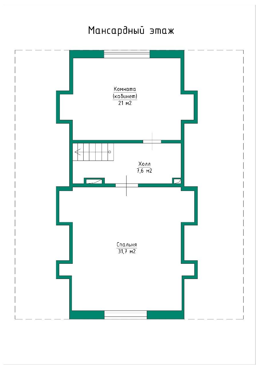
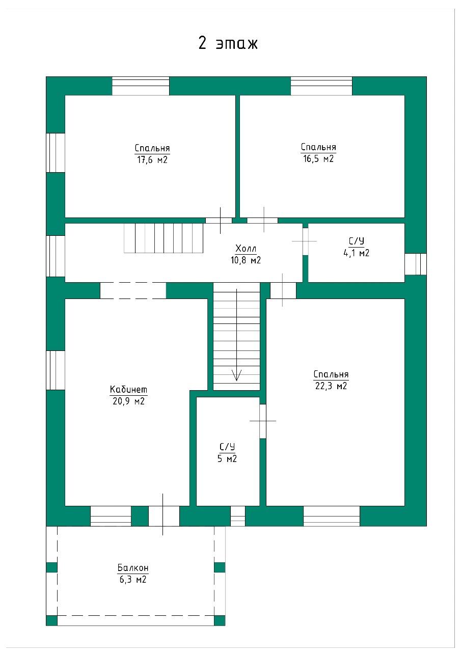
Продается уютный и функциональный жилой дом на большом красивом участке в экологически-чистом Дмитровском районе. Планировочные решения: - цокольный этаж: бильярдная (пул и русский бильярд) тренажерный зал, котельная, дополнительный вход в дом. - первый этаж: парадное крыльцо и вход в дом, прихожая, гостевой санузел, кухня, гостиная и балкон. - второй этаж: кабинет с изразцовым дровяным камином и выходом на балкон, три спальни одна из которых с собственным санузлом, для двух других спален предусмотрен отдельный санузел. - третий этаж: большая спальня, комната со встроенными шкафами под кабинет или дополнительную спальню/ гардеробную, 2 кладовые. - Чердак с возможностью эксплуатации. В отделке использованы высококачественные натуральные материалы, в том числе полы из лиственницы, мраморные подоконники. В зоне плитки - везде подогреваемый пол. Высота потолков на первом этаже 4 метра, что обеспечивает приятное ощущения пространства и много света в помещениях. На участке, площадью 19 соток расположены: - гараж; -двухэтажный кирпичный хозблок на ленточном фундаменте, с воротами под въезд снегохода, квадроцикла, мототехники; - отапливаемый жилой флигель с террасой с кирпичным грилем и коптильней; - зона пинг-понга со столом; - бетонная основа под установку бассейна с водоподготовкой. Эстетика участка обеспечивается искусственным прудом, обилием насаждений: туи, сосны, пихта, клен, каштан, яблони и ягодные кустарники. Территория огорожена капитальным забором на фундаменте с широкими воротами и мощеной парковочной площадкой при въезде. Напротив дома есть вместительная гостевая парковка. Конструкция дома монолит, фундамент монолитная плита, перекрытия 1 и 2 этажа монолитная плита, третьего этажа деревянные, материал стен кирпич. Отопление газовый котел, электричество 15 кВт., водоснабжение - скважина 200м., канализация септик 3 колодца.
